Die Baugenossenschaften Gartenstadt Luginsland und Münster beabsichtigen im Bad-Cannstatter Neubaugebiet NeckarPark nördlich des Veilbrunnenparks an der Frachtstraße eine neue Wohnanlage mit geförderten, genossenschaftlichen Mietwohnungen zu realisieren.
Unter Berücksichtigung des städtebaulichen Kontextes sieht unser Konzept auf Baufeld Q5 Nord eine viergeschossige Blockrandbebauung mit zwei winkelförmigen Flachdach-Baukörpern vor, die sich um einen zentral gelegenen Nachbarschaftshof mit Quartiersbaum und Baumhain situieren. Ein zurückgesetztes Staffeldachgeschoss im Norden mit Gemeinschaftsraum z.B. als Coworking-Space und angrenzendem halbprivaten Freibereich ergänzt das Angebot. Auf den südlichen Dachflächen werden gemeinschaftlich nutzbare, grüne Gartenflächen für die Mieter*innen der Genossenschaften angeboten.
Erschließung und 2. Rettungsweg
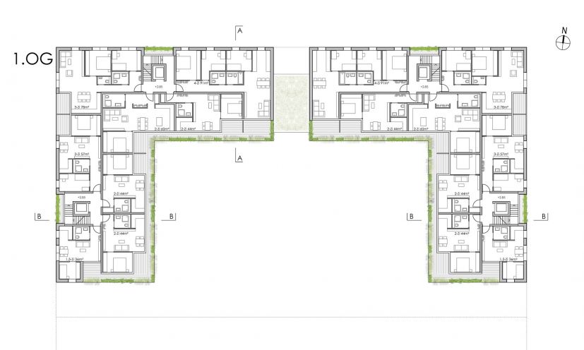
Der fußläufige Hauszugang erfolgt direkt von den öffentlichen Verkehrsflächen im Norden, Osten und Westen, direkt in die vier Treppenhäuser, halbgeschossig versetzt zur Erdgeschossfußhöhe. Alle Wohnungen und die Untergeschosse sowie Tiefgarage sind stufenlos mit Aufzug erreichbar.
Die Zugänglichkeit des Innenhofes für die Bewohner*innen erfolgt direkt aus den Treppenhäusern. Eine Zufahrt von Osten und Westen für Anlieferzwecke der südlichen Bebauung ist möglich, ansonsten erhält der Innenhof einen introvertierten Charakter, frei von öffentlichen Besucherströmen.
Die Tiefgaragenzufahrt erfolgt im Norden von der Frachtstraße, hierbei wird der Geländeversatz zur Integration der TG sinnvoll genutzt. Es besteht optional die Möglichkeit, eine zweite, separate Tiefgaragenzufahrt für den Fahrradverkehr auszuführen.
Der 2. Rettungsweg kann bis zur Höhe des 2.OG im Brandfall über Fenster und tragbare Leitern erfolgen. Die Wohnungen im 3.OG und DG werden mit der Drehleiter gerettet, die hierfür erforderlichen 5x11m-Feuerwehraufstellflächen sind auf den öffentlichen Verkehrsflächen möglich. Um zu vermeiden, dass im Innenhof große Bereiche aufgrund von 5x11m- FW-Aufstellflächen nicht gärtnerisch angelegt werden können, sind für jede Baugenossenschaft drei Wohnungen als Maisonette ausgebildet mit Rettung über tragbare Leitern im 2.OG und Rettung übers Treppenhaus im 3.OG.
Fassadenkonzept mit Begrünung und Filterfunktion
Zum Stadtraum zeigen sich die Neubauten des Blockrandes in Form einer Lochfassade mit bodentiefen Fenstern und Loggienbereichen. Die Geschossdecken werden horizontal betont. Die von Norden, Osten und Westen zugänglichen, natürlich belichteten Treppenhäuser erhalten zur Adressbildung eine begrünte, zweite Haut, die ebenso vom Treppenrauminneren durch Glasflächen erlebbar ist.
Im Blockinneren stellt sich das Fassadenkonzept transparent und begrünt dar. Eine vorgelagerte Begrünungskonstruktion wird gestalterisch in die Balkonloggien und Pflegestege integriert. Eine überwiegend transparent gestaltete Elementfassade bezieht die Fassadenbegrünung optisch in den Wohnraum ein. Vertikale, bodengebundene Rankpflanzensysteme wechseln sich mit grünen Brüstungen ab, somit werden Ausblicke zum Nachbarschaftshof ermöglicht.
In Höhe des Staffeldachgeschosses erhalten die winkelförmigen Baukörper eine umlaufende grüne Brüstungseinfassung als oberen Gebäudeabschluss.
Grünraum mit Angeboten für alle Bewohner*innen
Der Nachbarschaftshof für alle Bewohner*innen der drei Genossenschaften ist direkt von den Treppenhäusern zugänglich und durch einen grünen Rahmen gefasst.
Der Hof dient als Treffpunkt mehrer Generationen und lädt zum Verweilen und Spielen ein.
Der großkronige Quartiersbaum mit Erdanschluss, ein Baumhain, vielfältige Sitzangebote und Spielmöglichkeiten, die entlang eines geschwungenen Weges in eine grüne Hügellandschaft eingebunden sind, schaffen eine identitätsstiftende Atmosphäre.
Eine grüne Vorzone und Heckenbrüstungen sorgen für Privatheit der EG-Bewohner*innen.
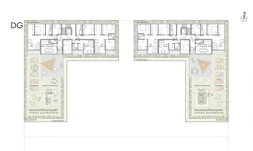
Die Dachgärten sind für alle Mieter*innen über die nördlichen Treppenhäuser barrierefrei zugänglich. Eine großzügige Dachterrasse, die an einen Gemeinschaftsraum angrenzt, sowie das gemeinsame Bewirtschaften der Dachgartenflächen mit Hochbeeten stärken den nachbarschaftlichen Zusammenhalt.
Ein Arrangement aus Bäumen, Rasen, Gräsern, Stauden, Sträuchern sowie Rank- und Hängepflanzen verändert sein farbliches Kleid im Laufe der Jahreszeiten. Die Pflanzen unterstützen die Gesundheit und das Wohlbefinden der Menschen sowie der Vögel und Insekten, die hier ein grünes, innerstädtisches Mikroklima vorfinden.
Wohnungsangebot
Die Wohnhäuser sind als Vierspänner-Typen mit kompakten Wohnungsgrundrissen geplant. Durch das Anheben der Erdgeschossfußhöhe im Vergleich zur Straßenhöhe erhalten die Erdgeschossbewohner*innen eine angemessene Privatheit.
Die Durchmischung von sozialgeförderten Mietwohnungen und Mietwohnungen für Mittlere Einkommensbezieher spiegelt unsere Leitidee sozial gemischter Nachbarschaften wieder.
Alle Wohnungsgrößen wurden gemäß der Förderrichtlinien entwickelt, mit Schwerpunkt auf Single- und Familienwohnungen.
Besonderer Wert wurde bei der Planung auf helle, lichtdurchflutete Aufenthaltsräume gelegt. Die Wohnungen sind überwiegend zum grünen Innenhof nach Osten, Süden oder Westen ausgerichtet. Durch bodentiefe Verglasungen werden Terrassen und loggienartige Balkone mit vorgesetztem Grün optisch in den Wohnraum einbezogen.
Zugunsten einer hohen Wohnqualität erhalten auch die kleinsten Singlewohnungen ein separates Schlafzimmer und natürlich belichtete Küchen. Wo möglich sind in der Wohnung Abstellräume geplant.
Die Flächen für den ruhenden Verkehr (Tiefgarage), Technik, Nebenräume und Fahrradstellflächen sind im Untergeschoss nach wirtschaftlichen Gesichtspunkten untergebracht. Eine zentrale Mülleinhausung ist in die nördliche Gebäudefuge integriert.
Energie und Nachhaltigkeit
Das Ziel unseres Energie- und Klimakonzeptes ist es, den Primärenergiebedarf für die Wärme- und Stromversorgung zu minimieren, wobei insbesondere die Wirtschaftlichkeit im Betrieb berücksichtigt wird. Die Dachflächen werden mit PV-Elementen belegt und begrünt.
Wichtige Kriterien sind dabei hoher thermischer und visueller Komfort für die Bewohner - das heißt die Schaffung eines ausgeglichenen Wohnklimas und einer atmosphärisch ansprechenden Umgebung - sowohl in den Gebäuden als auch im Bezug zum Außenraum.
Nachhaltigkeit wird beschrieben als Zusammenspiel von Effizienz, Suffizienz und Konsistenz.
Effizienz zeichnet sich durch die Kompaktheit der geplanten Gebäude ab.
Suffizienz wird erzielt durch die Fokussierung auf schlicht gehaltene Details.
Konsistenz wird durch eine entsprechende Fügung und Materialwahl erreicht - beispielsweise einer mineralischen Dämmung mit hinterlüfteter, vorpatinierter Holzfassade. Hin zum öffentlichen Raum ist ein robuster Sichtbetonsockel in Brettschalungsoptik geplant.








.jpg)
.jpg)
