Direkt zum Inhalt
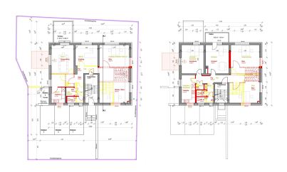
Geschäftsstellenumbau
in Stuttgart-Degerloch
Hainbuchenweg 16
Bauherr
Landesbaugenossenschaft
der Finanzbeamten eG
Ausführung
LPH 1-4
Bauzeit
10/2023-10/2024
Projekterläuterung